






Газобетон
Керамика
-
Стандарт
Комфорт
Индивидуальная комплектация
-
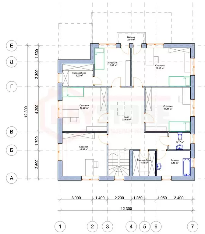
| Площадь | 149.5 м² |
| Количество этажей | 2 |
| Количество комнат | 6 |

Кредит на строительство
Сбербанк, Кредит Европа банк, РосЕвроБанк

Индивидуальный проект
В подарок при заказе строительства

Гарантия
5 лет на все здания

Доработка проектов
до совершенства

































Заказать