Важный этап строительства дома – прокладка инженерных коммуникаций. Качественно выполненный монтаж инженерных систем позволяет обеспечить будущих владельцев жилой площади всем необходимым для долговременного проживания: водой, теплом, электроэнергией, газом, вентиляцией, кондиционированием, а также возможностью отвода отработанных стоков.
Анализ использования различных типов систем отопления в малоэтажных домах определил наиболее комфортный и экономный вариант. Он заключается в применении комбинированной системы отопления, включающей установку радиаторов и устройство в некоторых комнатах теплого пола. Правильно спроектированная и смонтированная система с использованием современных отопительных приборов и технологий позволяет в процессе ее эксплуатации добиваться существенной экономии материальных ресурсов.

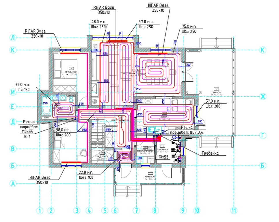
В большинстве комнат первого этажа монтируется теплый пол. Создаваемые им потоки теплого воздуха прогревают комнату и перекрытия (пол комнат второго этажа). Конструкция теплого пола включает трубы Рехау RAUTHERM S из сшитого полиэтилена, закрепленные на металлической сетке, уложенной поверх слоя экструдированного пенополистирола (ЭПС, XPS) толщиной 100 мм. Использование пенополистирола позволяет создавать эффективную теплоизоляционную защиту, препятствующую потерям тепла.
Выбор труб Рехау RAUTHERM S объясняется следующими преимуществами:
– возможностью использования при высоких температурах;
– антикоррозийной устойчивостью;
– отсутствием отложений внутри труб в процессе эксплуатации;
– возможностью изгиба труб под любым углом при монтаже без потери их качества;
– длительным сроком эксплуатации (более 50 лет);
– монтаж труб с использованием натяжных муфт гарантирует отсутствие протечек.

Вместе с устройством теплого пола в некоторых комнатах мы устанавливаем радиаторы Rifar Base Ventil. Этот биметаллический отопительный прибор сконструирован из отдельных секций, соединенных силиконовыми прокладками. Каждая секция радиатора выполнена из стальной трубы, внутрь которой залит алюминиевый сплав под высоким давлением. Такая конструкция радиатора делает его очень прочным и позволяет эксплуатировать при подаче теплоносителя с температурой до +135оС. Мы используем нижний вариант подключения радиаторов.
Выбор радиаторов, произведенных отечественной компанией «Рифар», обусловлен их следующими особенностями:
лаконичным дизайном;
высоким уровнем теплоотдачи;
возможностью регулировки мощности;
возможностью установки в небольших по площади помещениях;
относительно небольшой стоимостью.
Подключение радиаторов к отопительной системе мы выполняем, используя для этого трубы из нержавеющей стали системы Рехау Раутитан Г-образной формы и резьбозажимные соединения Рехау Раутитан.
Наш выбор основывается на следующих особенностях этих труб:
высокой прочности;
возможности покраски;
применения соединительной арматуры из нержавеющей стали;
возможности параллельной прокладки труб из-за наличия у них изгиба;
трубы не мешают производить уборку помещения.

В спальнях 2-го этажа окна расположены на уровне пола, поэтому в этих помещениях мы монтируем внутрипольные конвекторы необходимой мощности. Достоинством этого источника тепла является то, что отопительная часть их конструкции скрыта и не портит интерьер помещения. На виду остается только декоративная решетка. Через нее конвектором нагнетается в комнату нагретый воздух, защищая комнату от поступления холодного воздуха из окна. Использование внутрипольных конвекторов позволяет экономить жилую площадь и обходиться без установки радиаторов отопления.
Работы, выполняемые нами для обеспечения электроснабжения, можно условно поделить на три этапа:
устройство бытового электроснабжения;
прокладка слаботочных систем для управления воротами, рольставнями или роллетами;
устройство автономного электроснабжения.
Для монтажа бытового электроснабжения мы применяем негорючий медный кабель ВВГнг. Используется скрытый метод разводки – по стенам в устроенные для этого штробы, которые до начала отделки штукатурятся, и под потолком. На входе монтируются автоматические выключатели, защищающие сеть от токов короткого замыкания и перегрузок.
Заказать