Ведь не зря существует понятие "Проект". В нем отображаются все пожелания индивидуально. Каждого из Вас. Скомпоновано, и эргономично вписано в один объект, имеющий определенную форму, стилизованный исключительно под Вас. Каждая деталь продумана до мелочей. И Вам всего лишь необходимо сказать все то, о чем Вы мечтали, хотели и думали. Архитектор, он же психолог, четко улавливает Ваши пожелания, находит общий язык, и после длительного общения создает тот самый "Проект", по которому в последствии любой строитель сможет воздвигнуть задуманное Вами.
Каждый человек - индивидуальность. Достаточно сложно найти готовый проект дома, отвечающий всем представлениям о Вашим загородном доме.
Если Вы не нашли подходящего проекта или хотите поменять планировки в понравившемся проекте дома, мы предлагаем выполнить индивидуальное проектирование.
На этапе эскизного проектирования наш архитектор выслушает Ваши пожелания относительно внешнего вида дома, расположения жилых и вспомогательных помещений, уточнит у Вас размеры и форму земельного участка. После этого Вы получите предварительные эскизы планировок и внешнего вида дома. Затем Вы ещё раз обсуждаете с архитектором проект, вносите корректировки если необходимо.
Мы готовим для Вас альбом "Архитектурные решения" и вручаем его у нас в офисе.
Этот альбом необходим для регистрации строения и оформления разрешения на строительство.
БЕСПЛАТНО при заключении договора на строительство


Чтобы построить надёжный и качественный дом нужно рассчитать нагрузки на фундамент, нагрузки на перекрытия, снеговые и ветровые нагрузки. В соответствии с расчётами мы разрабатываем конструкцию Вашего будущего дома. Конструкторский проект будет отображать нашу технологию и содержать подробное описание узлов и элементов используемых при строительстве. Этот альбом мы используем на стройке.
БЕСПЛАТНО при заключении договора на строительство
Состав конструкторского проекта дома из блоков >>

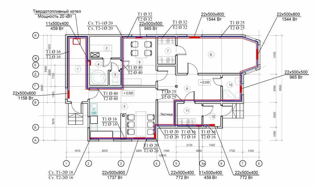
Чтобы эксплуатировать жилище необходимы коммуникации:
Электрооборудование
Отопление и вентиляция
Водоснабжение и канализация

Эти проекты необходимы для расчета и устройства инженерных систем.
БЕСПЛАТНО при заключении договора на устройство инженерных систем
Чтобы заказать проектирование необходимо связаться с менеджером по телефону +7(495) 580 21 39 или по электронной почте info@doma-iz-bloka.ru
Заказать